MLS # 18264434

5803 Route 263
Sainte-Praxède, G0M 1H1

949 000$

Property Description
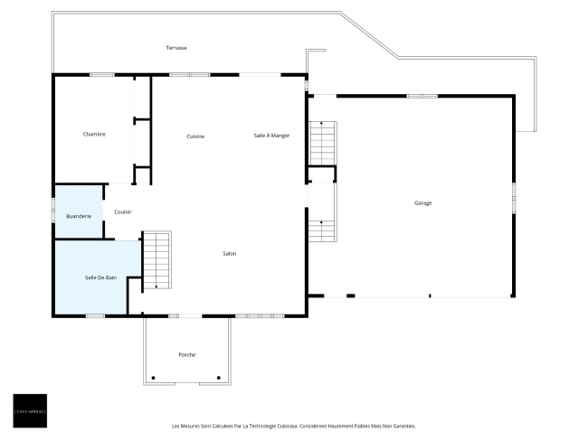
WATERFRONT -- GRAND LAKE SAINT-FRANÇOIS 206 linear feet along the shoreline on a 25,017 sq. ft. lot. Discover this property offering multiple possibilities, ideal for an established family! Featuring 4 bedrooms and 2 bathrooms, it offers approximately 1,300 sq. ft. of living space that is both functional and inviting. Located on a lot with access to the beautiful Lake Saint-François, it invites you to fully enjoy nature. Its spacious terrace is the perfect spot for peaceful mornings or evenings with friends. With its 6 garages, space and storage will never be an issue. A unique opportunity not to be missed!
Property Details

Property Type

Maison de plain-pied

Construction year

1994

FEATURES

RoomsLevelsDimensionsCovering
Living room1st level/Ground floor23.5x18.9 PCeramic tiles
Dining room1st level/Ground floor9.7x15.10 PCeramic tiles
Kitchen1st level/Ground floor12.7x15.9 PCeramic tiles
Primary bedroom1st level/Ground floor11.5x15.6 PWood
Laundry room1st level/Ground floor6.11x7.9 PCeramic tiles
Bathroom1st level/Ground floor12.7x10.9 PCeramic tiles
Family roomGarden level25.8x26.2 PFloating floor
BedroomGarden level10.4x12.4 PFloating floor
BedroomGarden level10.11x11.11 PFloating floor
BedroomGarden level12.7x12.10 PFloating floor
BathroomGarden level9.11x8.1 PCeramic tiles

Located in a peaceful and sought-after neighborhood, this property will appeal to families looking for space, functionality, and an exceptional living environment. With nearly 1,300 square feet of living space, it offers an ideal layout featuring 4 bedrooms and 2 bathrooms, perfectly suited for an established family or parents with teenagers seeking a balance of comfort and privacy.

The living areas stand out for their brightness and warmth, creating a welcoming space for daily life and entertaining. Outside, a spacious terrace naturally extends the living space and becomes a true gathering place to enjoy sunrises, evenings with friends, or simply the surrounding tranquility.

The property, featuring access to the prestigious Lac Saint-François, offers a sought-after lifestyle where nature and relaxation come together. Whether for water activities, moments of relaxation, or soothing landscapes, every season has its own charm.

A rare asset: the property features 6 garages, providing unparalleled space for vehicles, equipment, or personal projects, thus meeting the needs of even the most discerning buyers.

A property with endless possibilities, where every detail contributes to a remarkable quality of life.

Additional information:
-Attached garage renovated with an epoxy coating (2025).
-Kitchen cabinets have been replaced (2025).
-The shower in the ground-floor bathroom has been replaced (2025).
-The infrastructure for a generator is already in place.
-In the basement of the attached garage, an electrical panel was added to allow for the installation of a hot tub under the deck (2023).
Other features:
*6 garage doors.
*206 linear feet of lakefront.

Heating system

Space heating baseboards

Heating system

Electric baseboard units

Water supply

Artesian well

Heating energy

Wood

Heating energy

Electricity

Heating energy

Heating oil

Windows

PVC

Foundation

Poured concrete

Siding

Brick

Siding

Vinyl

Basement

6 feet and over

Basement

Finished basement

Basement

Separate entrance

Roofing

Asphalt shingles

Distinctive features

Water access

Distinctive features

No neighbours in the back

Distinctive features

Waterfront

Distinctive features

Navigable

Sewage system

Purification field

Sewage system

Septic tank

Zoning

Residential

Driveway

Asphalt

Driveway

Double width or more

Landscaping

Land / Yard lined with hedges

Landscaping

Patio

Landscaping

Landscape

Cupboard

Melamine

Cupboard

Thermoplastic

Equipment available

Wall-mounted heat pump

Hearth stove

Wood burning stove

Hearth stove

Oil stove

Garage

Attached

Garage

Heated

Garage

Detached

Garage

Double width or more

Proximity

Elementary school

Proximity

High school

Bathroom / Washroom

Whirlpool bath-tub

Bathroom / Washroom

Seperate shower

Parking

Outdoor

Parking

Garage

Window type

Sliding

Window type

Crank handle

Window type

French window

Topography

Sloped

Topography

Flat

View

Water

View

Panoramic

Inclusions:

Light fixtures, curtains, dishwasher, 1 blue bin, 1 green bin, 1 brown bin, the bedroom set which is located in one of the basement bedrooms - see with the broker.

Exclusions:

Sellers' movable property and personal effects, billiard table light, pontoon lift, dock.

TAXES & COSTS

Taxes & Costs
Municipal taxes (2026) 3142$
School taxes (2026) 572$
Total 3714$
Monthly fees
Energy cost 3600$
Common expenses/Base rent 0$
Total 0$

ASSESSMENTS

Evaluation (2026)
Building 423000$
Land 366700$
Total 789700$

Please enter the price of the house, the interest rate, the length of the loan to know how much per month you have to pay.

 $
 %
 %

0$ / Month

Cédric Boucher

Sacha De Santis

TAXES & COSTS

Taxes & Costs
Municipal taxes (2026) 3142$
School taxes (2026) 572$
Total 3714$
Monthly fees
Energy cost 3600$
Common expenses/Base rent 0$
Total 0$

ASSESSMENTS

Evaluation (2026)
Building 423000$
Land 366700$
Total 789700$